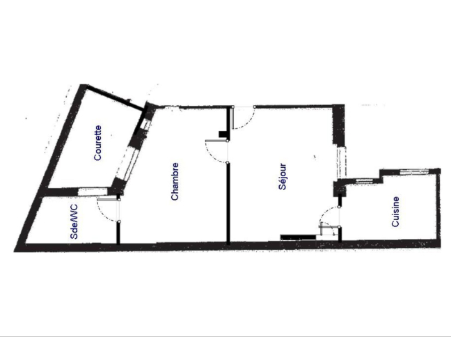
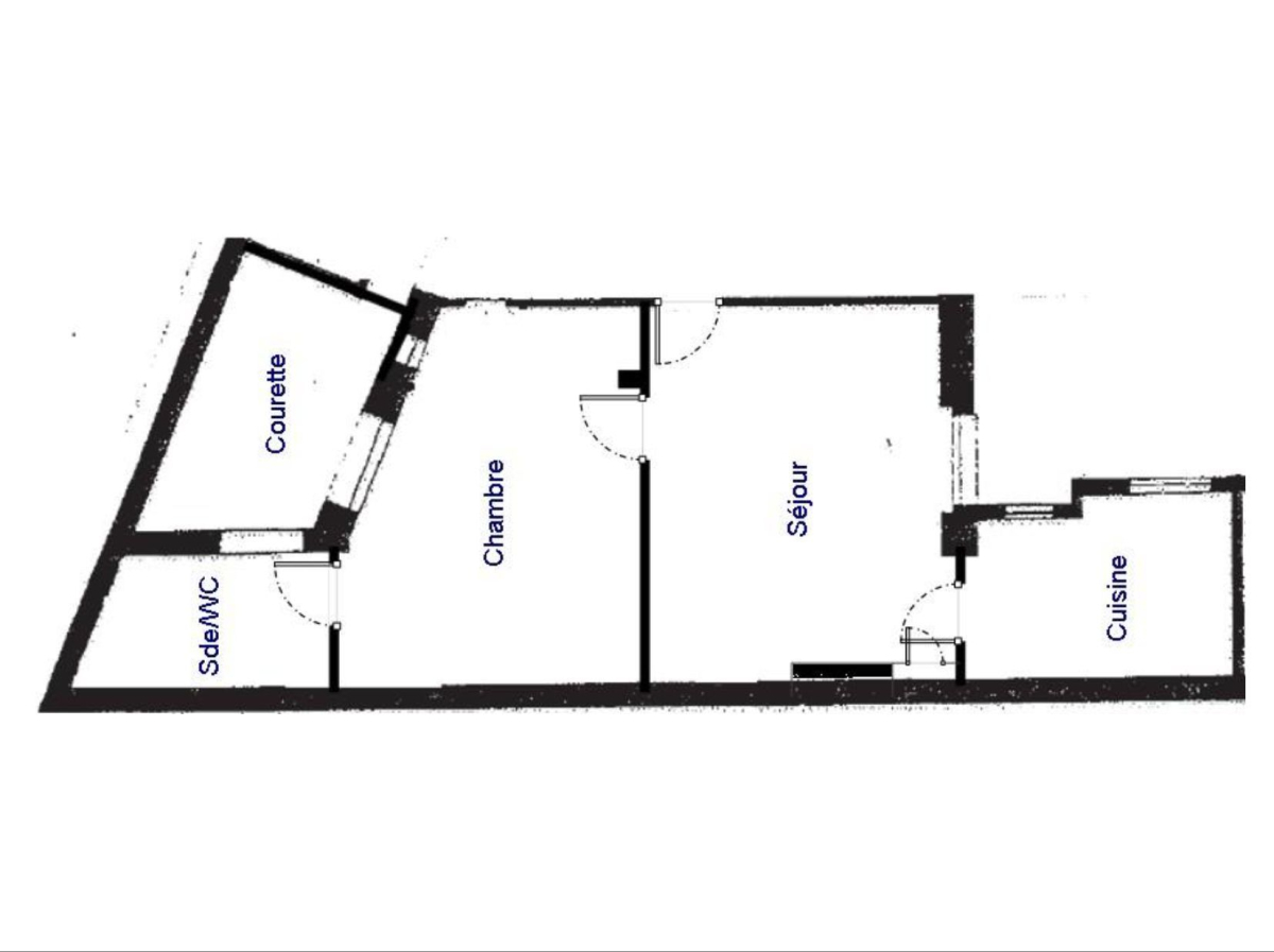
Boulevard Garibaldi 2pièces de 33,2 m² avec une cour privative. Deux-pièces calme et fonctionnel donnant entièrement sur cour, avec cour privative. Il se compose d'un séjour, d'une chambre, d'un grand placard/dressing, d'une cuisine indépendante et d'une salle d'eau avec WC. Une cave complète ce bien. Emplacement recherché, proche commerces et transports. .
Transports à proximité :
Cambronne
Ségur
- Honoraires à la charge de l'acquéreur : 3,08%
- Charges courantes provisionnelles annuelles : 1 920,00 €
- Date du diag : 01/01/2015
Quartier Seine Immobilier
06 20 40 09 60
06 20 40 09 60















